交通便利,随时看房,家电齐全,学校周边,端头房







112.00万 8434元/m²
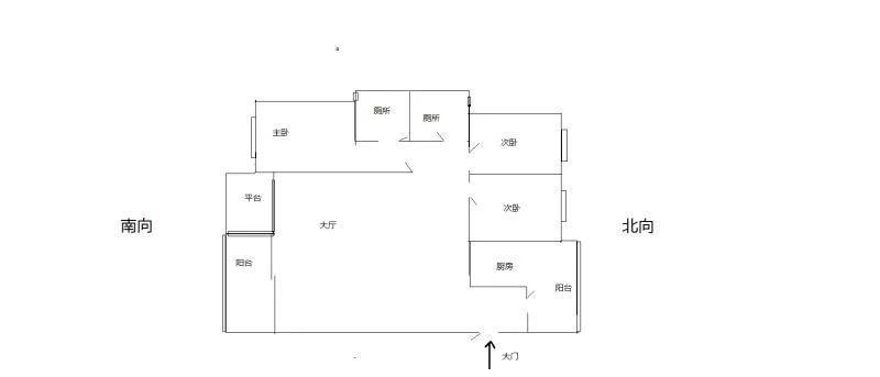
低楼层 共11层
精装
小区名称 : 滨江世纪城(鹧鸪江路12号)
所在区域 : 柳北区
看房时间 : 预约
房源编号 : GJW5AZ000319
我带看过本房 清楚知道本房特色
注:房源所示 房屋用途、交易权属、建成年代、产权年限、建筑结构 仅供参考,购房时请以房本信息为准。

