壶东苑(桂中大道82号) 精装 拎包入住 南北

交通便利,VR

柳州二手房 > 高新区二手房 > 河东路二手房

69.007225元/m²

3室 2厅

高楼层 共18层

南北

典式楼 精装

96

2015年建 

小区名称 : 壶东苑(桂中大道82号)

所在区域 : 高新区

看房时间 : 暂无数据

房源编号 : ZXJMLF1Z000679

朱娟

我带看过本房 清楚知道本房特色

13078075710

房源基本信息

交易属性

注:房源所示 房屋用途、交易权属、建成年代、产权年限、建筑结构 仅供参考,购房时请以房本信息为准。

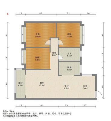
此房源照片
位置周边

为您推荐优质房源

桂中大道-阳光100城市广场(桂中大道南端2号)

2室2厅 81平方 63.00万

河西路-龙屯路二区

3室1厅 97平方 50.00万

石烂路-苗圃林厂生活区(石烂路1号)

3室2厅 120平方 88.00万

育才路-金福第(育才路7号)

3室2厅 121平方 118.00万

跃进路-云星·钱隆世家(跃进路110号)

4室2厅 116平方 98.00万

红碑路-嘉和名庭(红碑路4号)

3室2厅 120平方 99.00万

蝴蝶山路-阳光花园(蝴蝶山路58号)

2室2厅 73平方 50.50万

白沙路-绿城杨柳郡(白沙路16号)

4室2厅 140平方 190.00万

底部

公众号

小程序