锦绣香江(锦绣路3号之一) 拎包入住 南北

名校学区,电梯房,南北通透,得房率高,房东急卖,稀有好房,VR

柳州二手房 > 柳北区二手房 > 锦绣路二手房

57.007097元/m²

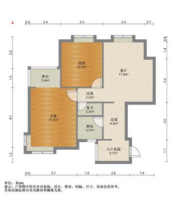
2室 2厅

高楼层 共27层

南北

 简装

80

2010年建 

小区名称 : 锦绣香江(锦绣路3号之一)

所在区域 : 柳北区

看房时间 : 暂无数据

房源编号 : BMJJDJJ2QJDDJJCZ000002

周春艳

我带看过本房 清楚知道本房特色

13633062552

房源基本信息

交易属性

注:房源所示 房屋用途、交易权属、建成年代、产权年限、建筑结构 仅供参考,购房时请以房本信息为准。

此房源照片
位置周边

为您推荐优质房源

桂中大道-阳光100城市广场(桂中大道南端2号)

2室2厅 81平方 63.00万

河西路-龙屯路二区

3室1厅 97平方 50.00万

石烂路-苗圃林厂生活区(石烂路1号)

3室2厅 120平方 88.00万

育才路-金福第(育才路7号)

3室2厅 121平方 118.00万

跃进路-云星·钱隆世家(跃进路110号)

4室2厅 116平方 98.00万

红碑路-嘉和名庭(红碑路4号)

3室2厅 120平方 99.00万

蝴蝶山路-阳光花园(蝴蝶山路58号)

2室2厅 73平方 50.50万

白沙路-绿城杨柳郡(白沙路16号)

4室2厅 140平方 190.00万

底部

公众号

小程序