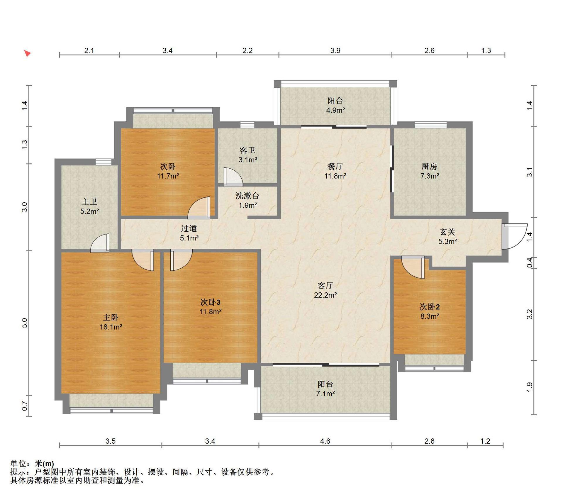
电梯房,交通便利,南北通透,得房率高,黄金楼层,明厨明卫,房东急卖







135.00万 9000元/m²
低楼层 共32层
板式楼 精装
2018年建
小区名称 : 碧桂园·十里江湾(环江滨水大道26号)
所在区域 : 高新区
看房时间 : 暂无数据
房源编号 : RH8Z000240
我带看过本房 清楚知道本房特色
注:房源所示 房屋用途、交易权属、建成年代、产权年限、建筑结构 仅供参考,购房时请以房本信息为准。

