交通便利,随时看房
									
								
							
									
								
							
									
								
							
									
								
							
									
								
							






81.00万 7187元/m²
高楼层 共28层
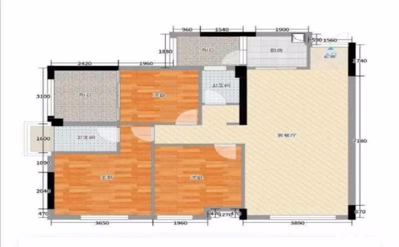
板典结合 毛坯
2015年建 平层
小区名称 : 正和城(新柳大道102号)
所在区域 : 古亭山片区
看房时间 : 预约
房源编号 : HG8Z000001
我带看过本房 清楚知道本房特色
注:房源所示 房屋用途、交易权属、建成年代、产权年限、建筑结构 仅供参考,购房时请以房本信息为准。

