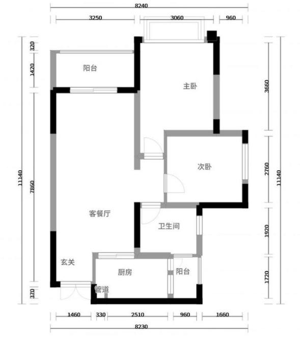
电梯房,南北通透







70.00万 5596元/m²
中楼层 共25层
板式楼 精装
2012年建 平层
小区名称 : 盛天龙湾(东晋大道3号)
所在区域 : 古亭山片区
看房时间 : 预约
房源编号 : XHJMBYYBAZ000004
我带看过本房 清楚知道本房特色
注:房源所示 房屋用途、交易权属、建成年代、产权年限、建筑结构 仅供参考,购房时请以房本信息为准。

