交通便利,紧急租售,学校周边
									
								
							
									
								
							
									
								
							
									
								
							
									
								
							






450.00万 11538元/m²
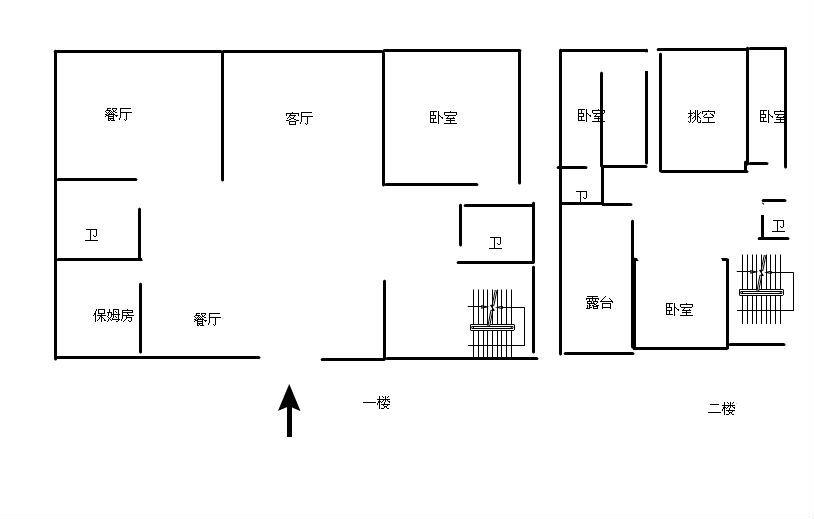
高楼层 共19层
板式楼 精装
2013年建 复式
小区名称 : 北大阳光(河东路4号)
所在区域 : 高新区
看房时间 : 预约
房源编号 : CTJMLC1Z000053
我带看过本房 清楚知道本房特色
注:房源所示 房屋用途、交易权属、建成年代、产权年限、建筑结构 仅供参考,购房时请以房本信息为准。

