交通便利,随时看房,家电齐全







38.00万 6435元/m²
高楼层 共9层
板式楼 精装
2003年建
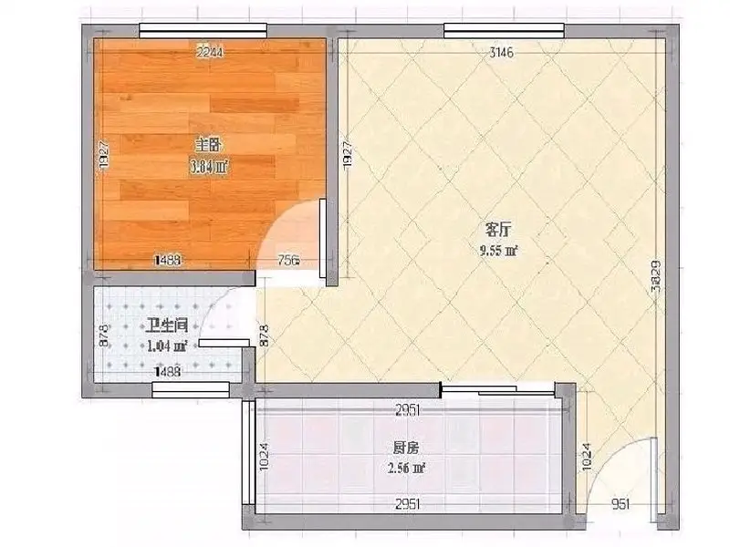
小区名称 : 润和时代广场(飞鹅路3号21-22)
所在区域 : 柳南区
看房时间 : 预约
房源编号 : YJAZ000012
我带看过本房 清楚知道本房特色
注:房源所示 房屋用途、交易权属、建成年代、产权年限、建筑结构 仅供参考,购房时请以房本信息为准。

