名校学区,品质洋房,得房率高,黄金楼层,户型方正,明厨明卫







49.00万 6806元/m²
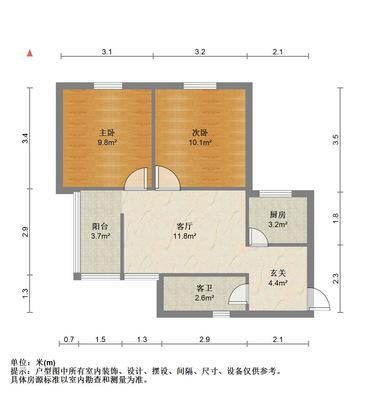
中楼层 共7层
板式楼 精装
1995年建
小区名称 : 台板厂宿舍(雅儒路289号)
所在区域 : 柳北区
看房时间 : 暂无数据
房源编号 : BMJSBHQJDJSBHFZ000581
我带看过本房 清楚知道本房特色
注:房源所示 房屋用途、交易权属、建成年代、产权年限、建筑结构 仅供参考,购房时请以房本信息为准。

