名校学区,电梯房,品质小区,交通便利,品质洋房,南北通透,得房率高,黄金楼层,全新装修,户型方正,明厨明卫,采光充足,稀有好房,刚需首选







93.00万 7790元/m²
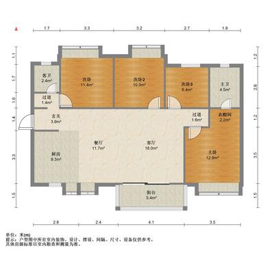
高楼层 共19层
典式楼 豪装
2022年建
小区名称 : 云溪四季花院(基隆综合区门头路289号)
所在区域 : 柳江区
看房时间 : 暂无数据
房源编号 : CTJMZA2Z000094
我带看过本房 清楚知道本房特色
注:房源所示 房屋用途、交易权属、建成年代、产权年限、建筑结构 仅供参考,购房时请以房本信息为准。

