电梯房,品质小区,南北通透,全新装修,户型方正,采光充足,稀有好房







62.00万 5128元/m²
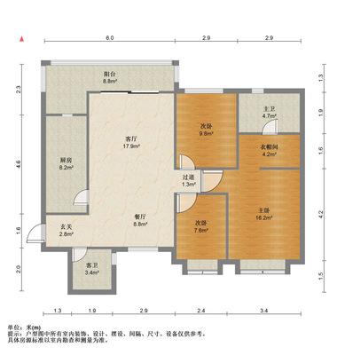
中楼层 共32层
板式楼 精装
2018年建
小区名称 : 恒大御景湾(和源路8号)
所在区域 : 古亭山片区
看房时间 : 暂无数据
房源编号 : PYYGJMPYYG1Z000271
我带看过本房 清楚知道本房特色
注:房源所示 房屋用途、交易权属、建成年代、产权年限、建筑结构 仅供参考,购房时请以房本信息为准。

