名校学区,电梯房,品质小区,交通便利,品质洋房,南北通透,得房率高,户型方正,采光充足,VR 核实码
柳州二手房 > 高新区二手房 > 河东路二手房
57.80万 5954元/m²
低楼层 共18层
板式楼 精装
2012年建
小区名称 : 壶东苑(桂中大道82号)
所在区域 : 高新区
看房时间 : 暂无数据
房源编号 : BMQHJMQH1Z001110
许晓春
我带看过本房 清楚知道本房特色
注:房源所示 房屋用途、交易权属、建成年代、产权年限、建筑结构 仅供参考,购房时请以房本信息为准。
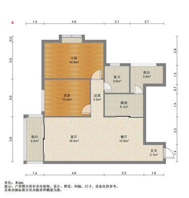
2室2厅 81平方 63.00万
3室1厅 97平方 50.00万
3室2厅 120平方 88.00万
3室2厅 121平方 118.00万
4室2厅 116平方 98.00万
3室2厅 120平方 99.00万
2室2厅 73平方 50.50万
4室2厅 140平方 190.00万
公众号
小程序