盛天龙湾(东晋大道3号) 精装 拎包入住 随时看房 南北

交通便利,家电齐全,电梯房,户型方正,黄金楼层,明厨明卫,采光充足,全新装修,刚需首选,房东急卖,低首付,VR

柳州二手房 > 古亭山片区二手房 > 阳和大道二手房

56.804544元/m²

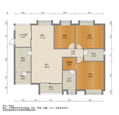
3室 2厅

低楼层 共18层

南北

板式楼 精装

125

2010年建 平层

小区名称 : 盛天龙湾(东晋大道3号)

所在区域 : 古亭山片区

看房时间 : 预约

房源编号 : KX6Z000282

张小华

我带看过本房 清楚知道本房特色

17377227569

房源基本信息

交易属性

注:房源所示 房屋用途、交易权属、建成年代、产权年限、建筑结构 仅供参考,购房时请以房本信息为准。

此房源照片
位置周边

为您推荐优质房源

桂中大道-阳光100城市广场(桂中大道南端2号)

2室2厅 81平方 63.00万

阳和大道-恒大御景湾(和源路8号)

3室2厅 112平方 75.00万

河西路-龙屯路二区

3室1厅 97平方 50.00万

石烂路-苗圃林厂生活区(石烂路1号)

3室2厅 120平方 88.00万

育才路-金福第(育才路7号)

3室2厅 121平方 118.00万

跃进路-云星·钱隆世家(跃进路110号)

4室2厅 116平方 98.00万

红碑路-嘉和名庭(红碑路4号)

3室2厅 120平方 99.00万

蝴蝶山路-阳光花园(蝴蝶山路58号)

2室2厅 73平方 50.50万

底部

公众号

小程序