交通方便,黄金地段,得房率高,性价比高







190.00万 7925元/m²
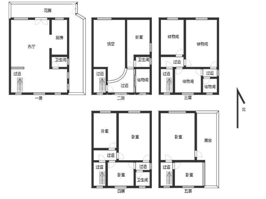
中楼层 共5层
板式楼 精装
2005年建 挑高
小区名称 : 桂景湾别墅区
所在区域 : 柳北区
看房时间 : 随时
房源编号 : RHKZ000037
我带看过本房 清楚知道本房特色
注:房源所示 房屋用途、交易权属、建成年代、产权年限、建筑结构 仅供参考,购房时请以房本信息为准。

