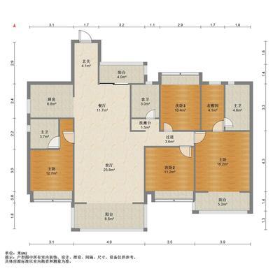
碧桂园·十里江湾(环江滨水大道26号) 精装 拎包入住 南北
房源上架时间2023-10-13 房源编号LT1Z001607

柳州出租 > 高新区出租 > 环江滨水大道出租

4500元/月

交通便利

    4室2厅3卫 168m² 南北

百亩房产

19976158184

房屋信息

配套设施

煤气/天然气

房源评论

此房源照片
位置周边

好房为你推荐

2室2厅1卫 面积66 2300元/月

2室2厅1卫 面积72 2200元/月

2室2厅1卫 面积71 1500元/月

同小区在租房源

4室2厅2卫 面积150

4室2厅4卫 面积205

1室1厅1卫 面积48

底部

公众号

小程序