东环商厦(东环路81号) 精装 拎包入住 随时看房 南北
房源上架时间2021-04-21 房源编号LT1Z000350

柳州出租 > 鱼峰区出租 > 东环大道出租

1200元/月

交通便利 随时看房 家电齐全 紧急租售 学校周边

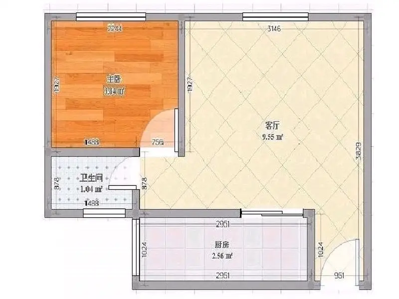
    1室1厅1卫 30m² 南北

运营中心

17774858296

房屋信息

配套设施

煤气/天然气
暖气
电梯
车位/车库
花园/小院

房源评论

此房源照片
位置周边

好房为你推荐

1室1厅1卫 面积48 1500元/月

1室1厅1卫 面积47 1300元/月

1室1厅1卫 面积30 900元/月

同小区在租房源

1室1厅1卫 面积30

1室1厅1卫 面积37

3室1厅1卫 面积91

底部

公众号

小程序