东馨佳苑(景苑路19号) 精装 南北
房源上架时间2026-02-01 房源编号LSBZ000128

柳州出租 > 鱼峰区出租 > 景苑路出租

1500元/月

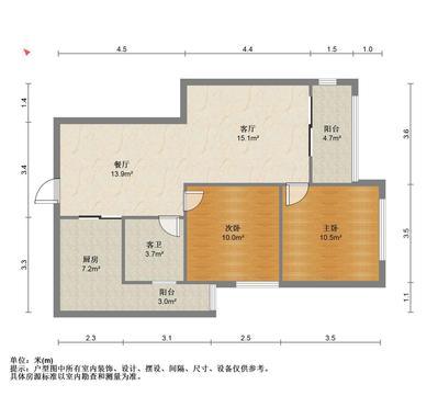
    2室2厅1卫 93m² 南北

百亩房产

13377238962

房屋信息

房源评论

此房源照片
位置周边

好房为你推荐

2室1厅1卫 面积80 1000元/月

2室2厅2卫 面积89 1000元/月

2室2厅1卫 面积76 1800元/月

同小区在租房源

3室2厅2卫 面积130

2室2厅1卫 面积90

3室2厅2卫 面积114

底部

公众号

小程序