合金材料厂宿舍(白云路2号) 精装 拎包入住 随时看房 南北
房源上架时间2025-04-18 房源编号HCH2Z000332

柳州出租 > 鱼峰区出租 > 白云路出租

1000元/月

交通便利 家电齐全 紧急租售

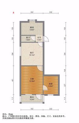
    2室1厅1卫 56m² 南北

百亩房产

17736665987

房屋信息

配套设施

房源评论

此房源照片
位置周边

好房为你推荐

1室1厅1卫 面积48 1500元/月

1室1厅1卫 面积47 1300元/月

1室1厅1卫 面积30 900元/月

同小区在租房源

2室1厅1卫 面积68

2室1厅1卫 面积65

2室2厅1卫 面积65

底部

公众号

小程序