交通便利 随时看房 家电齐全 紧急租售 小户型

房源编号GXBDFC013251

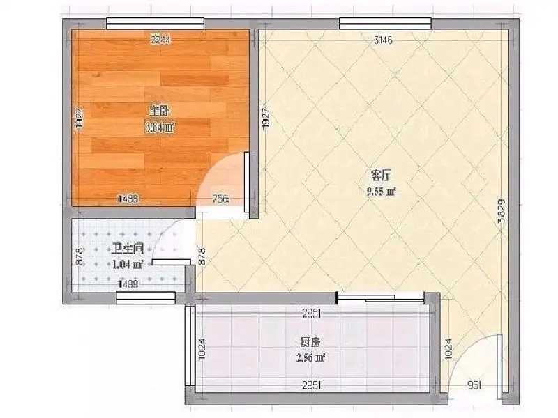
屏山大道 屏山小区(屏山大道270号) 1居室
32.00

售价

1室1厅

房型

45

面积

房源信息
单价 : 7111元/m²
朝向 : 南北
楼层 : 中楼层 共8层
楼型 : 板式楼
装修 : 精装
年代 : 1996年
用途 : 住宅
权属 :
小区 : 屏山小区(屏山大道270号)
挂牌 :
推荐经纪人
周边配套
位置 :
房源动态

0

近7天带看(次)

0

近30天带看(次)
带看记录
看房日期
带看人
联系电话
推荐二手房

阳光100城市广场(桂中大道南端2号)

2室2厅 81阳光100城市广场(桂中大道南端2号)

63.00 149000元/平

交通便利 学校周边 VR

龙屯路二区

3室1厅 97龙屯路二区

50.00 149000元/平

房东急售 南北通透

苗圃林厂生活区(石烂路1号)

3室2厅 120苗圃林厂生活区(石烂路1号)

88.00 149000元/平

学区房 交通便利 配套成熟

金福第(育才路7号)

3室2厅 121金福第(育才路7号)

118.00 149000元/平

交通便利 紧急租售 学校周边

云星·钱隆世家(跃进路110号)

4室2厅 116云星·钱隆世家(跃进路110号)

98.00 149000元/平

交通便利

嘉和名庭(红碑路4号)

3室2厅 120嘉和名庭(红碑路4号)

99.00 149000元/平

交通便利 家电齐全

阳光花园(蝴蝶山路58号)

2室2厅 73阳光花园(蝴蝶山路58号)

50.50 149000元/平

交通便利 家电齐全 小户型

绿城杨柳郡(白沙路16号)

4室2厅 140绿城杨柳郡(白沙路16号)

190.00 149000元/平

电梯房 交通便利 随时看房

百亩房产