VR 品质小区 交通便利 南北通透 户型方正 VR

房源编号ZYJMZY1Z000311

鹿园路 观山福邸(鹿园路2号) 3居室
65.00

售价

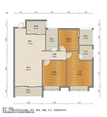
3室2厅

房型

106

面积

房源信息
单价 : 6129元/m²
朝向 : 南北
楼层 : 低楼层 共20层
楼型 :
装修 : 毛坯
年代 : 2020年
用途 : 住宅
权属 :
小区 : 观山福邸(鹿园路2号)
挂牌 :
推荐经纪人
周边配套
位置 :
房源动态

0

近7天带看(次)

0

近30天带看(次)
带看记录
看房日期
带看人
联系电话
推荐二手房

阳光100城市广场(桂中大道南端2号)

2室2厅 81阳光100城市广场(桂中大道南端2号)

63.00 149000元/平

交通便利 学校周边 VR

龙屯路二区

3室1厅 97龙屯路二区

50.00 149000元/平

房东急售 南北通透

苗圃林厂生活区(石烂路1号)

3室2厅 120苗圃林厂生活区(石烂路1号)

88.00 149000元/平

学区房 交通便利 配套成熟

金福第(育才路7号)

3室2厅 121金福第(育才路7号)

118.00 149000元/平

交通便利 紧急租售 学校周边

云星·钱隆世家(跃进路110号)

4室2厅 116云星·钱隆世家(跃进路110号)

98.00 149000元/平

交通便利

嘉和名庭(红碑路4号)

3室2厅 120嘉和名庭(红碑路4号)

99.00 149000元/平

交通便利 家电齐全

阳光花园(蝴蝶山路58号)

2室2厅 73阳光花园(蝴蝶山路58号)

50.50 149000元/平

交通便利 家电齐全 小户型

绿城杨柳郡(白沙路16号)

4室2厅 140绿城杨柳郡(白沙路16号)

190.00 149000元/平

电梯房 交通便利 随时看房

百亩房产