房源编号YG6Z001374

北站路东二巷48号

房租(月付价)

1000元/月

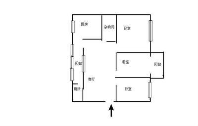
户型

3室2厅1卫

面积

96
拎包入住
发布 : 2023-03-28
入住 :
看房 :
楼层 : 中楼层
车位 :
煤气 :
用电 :
小区 : 北站路东二巷48号
房源简介
位置及周边
位置 :
好房为你推荐

宏祥园(柳邕路二区5号)

76/ 2室2厅/ 南北

1800元/月

康城(北雀路28号)

184/ 5室2厅/ 南北

2000元/月

南北通透

恒大·翡翠龙庭(东环路168号)

99/ 3室2厅/ 南北

3200元/月

兴怡园(桂柳路1号之三)

66/ 2室2厅/ 南北

1800元/月

交通便利

阳光壹佰城市广场(桂中大道南端2号)

50/ 1室1厅/ 正东

1200元/月

交通便利 随时看房 家电齐全

兴怡园(桂柳路1号之三)

66/ 2室2厅/ 南北

2300元/月

电信局宿舍(蝴蝶山路68号)

83/ 3室2厅/ 南北

1500元/月

上东·龙城世家(桂中大道6号)

98/ 3室2厅/ 南北

2500元/月

百亩房产